Продаж будинку
Київ
170.0 м.кв. Ділянка 6 соток
9 186 000 грн.
Продаж |
Оренда |
9 186 000 грн. |
- |
|
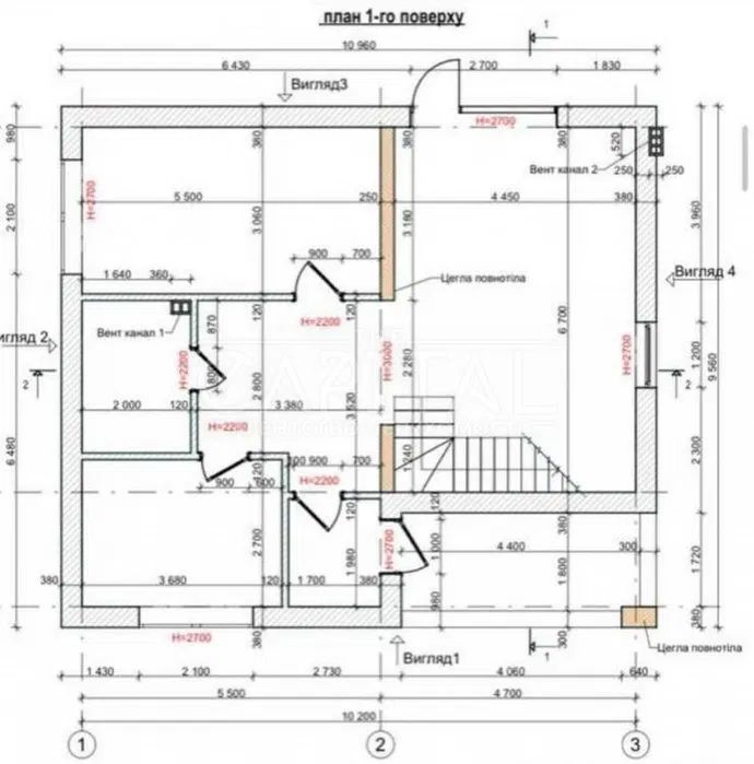
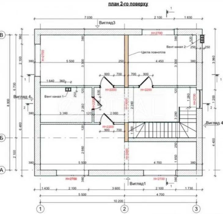
Поверховість - 2 поверхи Кількість кімнат - 4 кімнати Загальна площа, - 170.0 м.кв. Ділянка - 6 соток. Проект Quiet place – это жилой миникомплекс из трех отдельных коттеджей, построенных в стиле минимализм и объединенных общей зоной отдыха. Планировка дома:1 этаж:- терраса – 9,7 м2;- тамбур – 3,6 м2;- прихожая - 8,3 м2;- с/у – 5,5 м2;- комната – 14 м2;- гостиная – 36,5 м2.2 этаж:- коридор – 14,7 м2;- комната – 18 м2;- комната – 15 м2;- с/у – 8 м2. Комната с рабочим кабинетом – 23,9 м2. Коммуникации:- газ;- свет;- скважина;- септик;- асфальтированный подъезд; На участке:- 2 парковочных места;- обустроенная территория с выходом к воде – зона "Fireplace". Инфраструктура: в 5-мин. на Столичном шоссе находятся торговые центры "Арт Молл", "Атмосфера", "Домосфера", гипермаркет "Fozzy", ресторан "Фабиус", семейный клуб "Маячок". |
|
|---|---|













