Продаж будинку
Київ
165.0 м.кв. Ділянка 10 соток
5 146 000 грн.
Продаж |
Оренда |
5 146 000 грн. |
- |
|
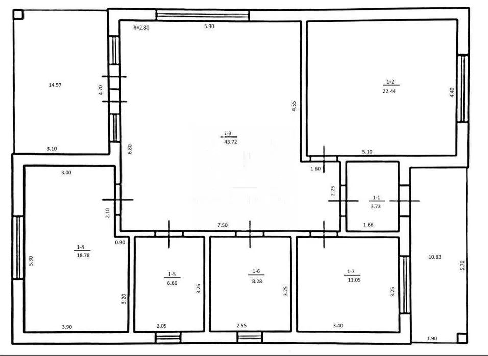
Поверховість - 1 поверх Кількість кімнат - 4 кімнати Загальна площа, - 165.0 м.кв. Ділянка - 10 соток. Предлагаем к продаже новый дом в Голосеевском районе, Чапаевка. Дом одноэтажный, общей площадью 165м, материал стен — газоблок. Планировочным решением предусмотрено 3 спальни, с/у, гардеробная, кухня-гостиная с выходом на террасу. Участок ровный 10 соток, огражден бетонным забором, сделана парковка для двух авто. Подведены коммуникации — электричество (3 фазы, 41.4 кВт), два септика, скважина, установлены двухкамерные стеклопакеты. Рядом школа, дет.сад, сосновый лес, супермаркет, торговый центр. Дом готов к просмотру, звоните! Без комиссионных. GRACE HOUSE - надёжный партнёр в выборе премиальной недвижимости. Обращаясь к нам, Вы сбережёте главный ресурс - время. |
|
|---|---|





















