Продаж будинку
Київ
370.0 м.кв. Ділянка 10 соток
8 127 000 грн.
Продаж |
Оренда |
8 127 000 грн. |
- |
|
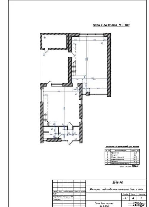
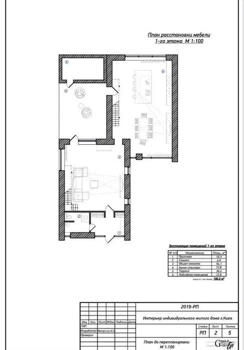
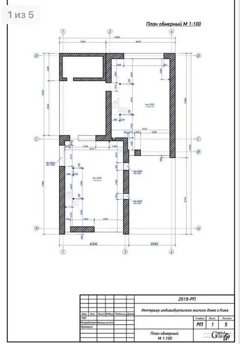
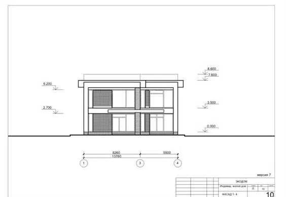
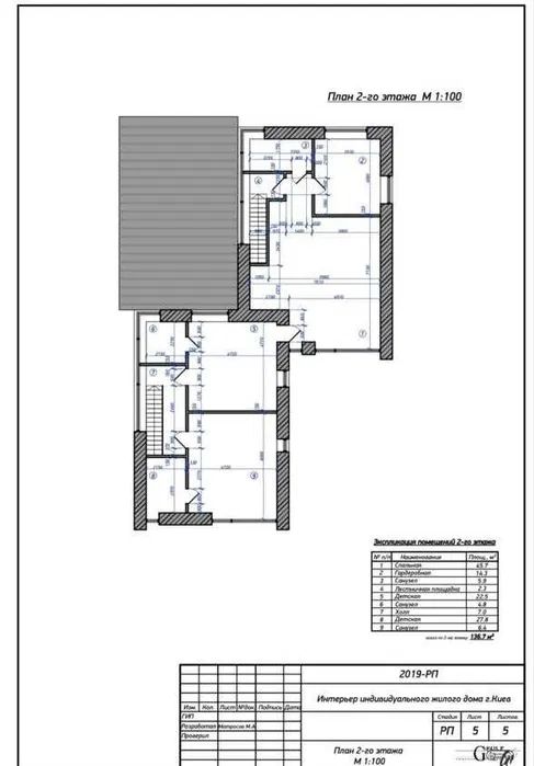
Поверховість - 2 поверхи Кількість кімнат - 4 кімнати Загальна площа, - 370.0 м.кв. Ділянка - 10 соток. Дом Жуляны , Колосковая 3 - Фундамент: Ленточный цельнолитый (1500*70*120), мембранный рубероид, гидроизоляция - Полы: черновые 10 см - Стены: 70 см (12 см кирпич , 46 см костра + цементноизвестковый раствор , 12 см кирпич) - Цоколь: 3 слоя гидроизоляции - Крыша: двухскатная + водосточная система, профнастил 55 мм , ферма дерево 50 см, гидробарьер, паробарьер, наполнение костра + цементноизвестковый раствор, подшив доска 3см - Окна: KBE 70 профиль серый в массе, фурнитура Германия, входная группа алюминий. Система solar, спецификация в доп. файле - Перекрытие межэтажное : ферма дерево 50 см , доска подшив 3 см , наполнение костра + цементноизвестковый раствор - Септик: яма 2 шт. по 3 кольца 200 см - Коммуникации: скважина 45 м труба 125, электричество 20 КвТ + можно добавить еще 10 КвТ -Внутрянка: черновые работы - Наружка: готово все кроме: финальный слой краски, откосы, часть крыши над террасой - Дизайн проект: визуализация + планировка готовы, вышлю доп. Файлом - Ландшафт + полив : готов проект + ценовое предложение , вышлю доп. Файлом - Газ: проходит по улице, есть возможность подключения - Отопление + Теплый пол: не установлен но готов проект + ценовое предложение - Котел: не установлен но есть 4 предложения (газ, твердотопливный, электро, тепло насос) - Документы: справка о начале строительных работ, право собственности на землю, договор купли-продажи земельного участка, тех паспорт на дом, топографический план и т.д. |
|
|---|---|
























